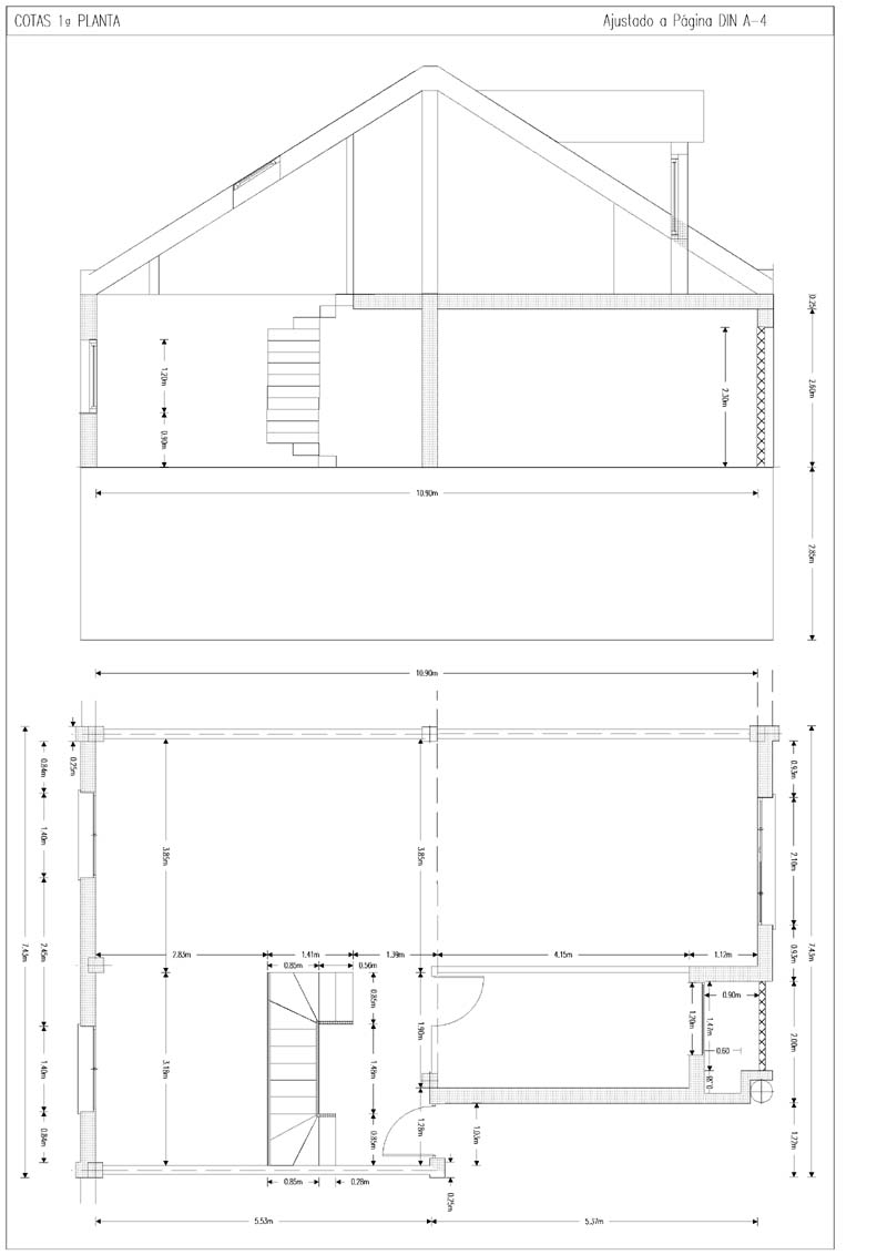
Inicio   2ª planta Descargar en Din A4 Din A3 PDF

Imprimir

distribución         3D
   

 

FORMACION TECNICO PROFESIONAL http://www.fotepro.com 902/152921 91/5714646 (*)Reservado todos los derechos.

Autor: José M. Sánchez profesor@fotepro.es 626/919190